Industrial and Commercial Developments

Industrial & Commercial Developments

We facilitate the development process and deliver turnkey development solutions within agreed project timeframes. Our development portfolio includes: Turnkey development opportunities, tailor-made buildings to tenant requirements and industrial plots for sale. Contact us to find out which tenant or property will suit your leasing requirements.

Secure Industrial Park

Situated on the N2 Somerset-West

Turnkey development opportunities available.
Tailormade buildings to tenant requirements.
Industrial plots for sale.

Contact

James Vos +27 83 253 9754
Ronnie Derbyshire +27 83 250 1297

Helderberg Industrial Park

Large, major national & international companies based within the Park.

Situated on the N2 Strand 

We've successfully placed Rola Mercedes-Benz commercial vehicles, Sylco Plant, Prima Boxes, Mega Mix, Sundance Pools.
20 000sqm Development opportunity available.
Built to specification.

Contact

James Vos +27 83 253 9754
Ronnie Derbyshire +27 83 250 1297

Kwela Park

Secure Industrial Park

Situated on the corner of Range and Buttskop roads, Blackheath

Successfully planned, managed and facilitated this unique 25 erven Industrial Park for the developer
Successfully sold all 25 erven
Development opportunities available
Competitive rentals

Contact

James Vos +27 83 253 9754
Ronnie Derbyshire +27 83 250 1297

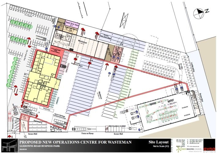
Saxdowne Park

Secure Industrial / Business Park

Situated just off the R300 on the Stellenbosch Arterial Road.

Civils to this development commenced in August 2013. 
We've successfully negotiated a 12-year lease with Wasteman for their new Western Cape Head Office on a 27 000sqm facility. 
Plots / Land for sale within this park. 
Development opportunities available.

Contact

James Vos +27 83 253 9754
Ronnie Derbyshire +27 83 250 1297

View our full brochure

Saxenburg Park 1 & 2

In 1997 EF Entrepreneur Property Group planned with Power Developments this prime industrial park consisting of 227 erven.

We launced Saxenburg Park 1 at R110/sqm in 1998 and sold 80% of the sites. Since 1998 we have successfully placed more than 200 companies within the park through sales and leases. Actively involved on a daily basis with re-developments, sales & rentals. Due to the huge success of this development, Saxenburg park 2 was launched in 2005, consisting of 68 industrial stands.
Land / plots for sale.
Warehouses & Factories For Sale & To Let.
Management of client portfolios.

Contact

James Vos +27 83 253 9754
Ronnie Derbyshire +27 83 250 1297

Zevenwacht Industrial Park

Secure business/industrial estate opposite the Zevenwacht Mall.

Situated on the corner of Stellenbosch Arterial and Van Riebeeck road, Kuilsriver

Walking distance to train station. 
Development opportunities available, tailormade to tenants' specifications.
New buildings with competitive rentals. 
Triton Express new facility.

Contact

James Vos +27 83 253 9754
Ronnie Derbyshire +27 83 250 1297